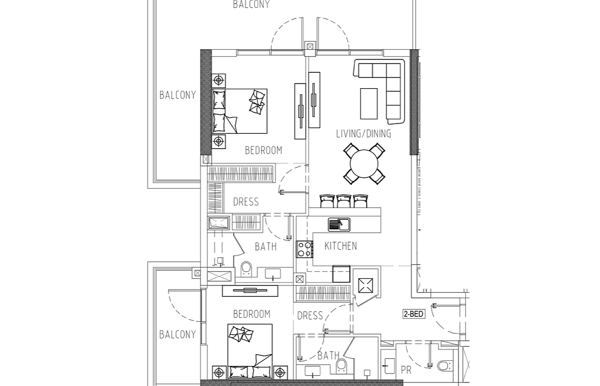
Новые 2-спальные апартаменты в Дубае №184179
Продаются апартаменты с 2 спальнями в жилом комплексе премиум-класса, расположенном в районе Dubai Investment Park 2 в Дубае. Комплекс расположен на набережной, предоставляя жителям доступ к живописным видам на воду и благоустроенным зеленым зонам. Внутренняя инфраструктура включает в себя гидропонные фермы, дзен-спа, фитнес-центр у воды, плавучий кинотеатр, рестораны и амфитеатр. Детские игровые зоны и зоны отдыха обеспечивают комфортное пространство для семейного отдыха. Первый в Дубае жилой комплекс созданный вокруг искусственной речной системы. Инновационный дизайн набережной формирует особый микроклимат, обеспечивающий прохладу и свежесть круглый год. Водные прогулки, места для отдыха и развлечений — все это станет частью вашей повседневной жизни. В комплексе гармонично объединены две уникальные зоны — Water Vein для расслабленного отдыха и Green Vein для восстановления и оздоровления. Эта инновационная концепция открывает перед жителями новые грани комфорта и доступ к эксклюзивной инфраструктуре, не имеющей аналогов в Дубае.
