
New 2-bedroom apartment in Dubai / Business Bay №186695




Additional:
Description:
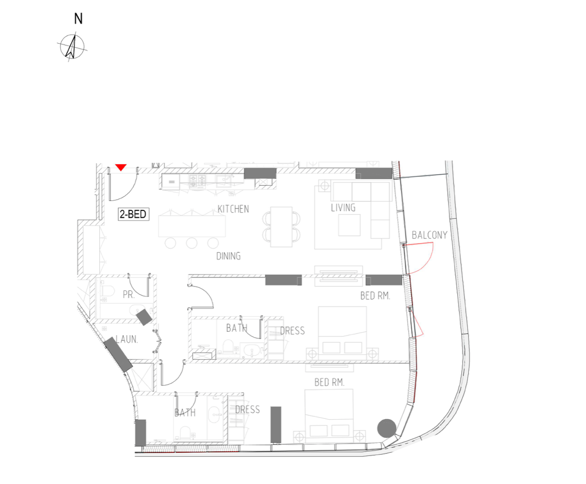
2 bedroom apartment for sale in a 43-storey branded complex in Business Bay. It features a collection of studios, apartments with 1-3 bedrooms, and just two two-bedroom duplexes.The layouts include a balcony, a laundry room and a powder room, while the duplexes are complemented by a maid's bedroom and a private terrace.The kitchens will feature porcelain countertops, stainless steel sinks, and household appliances such as a refrigerator, stove, extractor hood, and washing machine. The bedrooms are equipped with built-in wardrobes.An amazing recreation infrastructure will be created in the complex: an infinity pool, sun beds with solar panels, a "sphere of tranquility", a space-style garden, a beauty bar, a gym, a spa, floating therapeutic capsules, a stargazing observatory, a children's play area, an observation deck, a large lobby, a shopping promenade.It takes about 10 minutes by car to a number of popular Dubai attractions — Coca-Cola Arena, Dubai Mall, Dubai Opera, Burj Khalifa, The Dubai Fountain, Winter Garden at Habtoor Palace Dubai.
№186695
Apartment
City:
District:
Complex:
2
2
1 ft²
1 ft²
8
43
50 м
A
AED 874,466 / ft²
DOM Real Estate
+971 50 20 17 204








