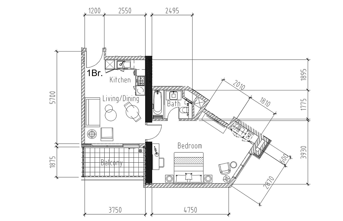
Новые 1-спальные апартаменты в Дубае №184687
Продается 1 спальная квартира в премиальном жилом комплексе расположенном на центральной автомагистрали Дубая Sheikh Zayed Road в районе Business Bay. Состоит из 4 башен (Tower A, Tower B, Tower C, Tower D). Башни соединены между собой платформой, которая открывает вид на туристическую достопримечательность Aykon Dare. На территории есть большой бассейн, элитный SPA-салон, пляжный клуб, кафе, рестораны, открытые зоны для занятия йогой и Тай-чи. Апартаменты представляют собой со вкусом подобранное сочетание роскошных экстерьеров и интерьеров в сочетании с удобствами мирового класса. Продуманно спроектированные жилые помещения имеют поразительные окна от пола до потолка, обеспечивающие обилие естественного света и открытые виды. Спроектирован таким образом, что обеспечивает великолепный вид из любого места внутри здания. Территория комплекса круглосуточно контролируется частной охранной компанией.
Примерно за 10 минут можно доехать до торговых центров Dubai Mall, City Walk и BoxPark, за 15 минут — до Palm Jumeirah и до Burj Al Arab и за 20 минут — до центральной улицы The Walk JBR. Международный аэропорт Дубая Dubai International Airport находится примерно в 30 минутах езды, а новый аэропорт Al Maktoum International Airport — в 45 минутах.
