Новые 2-спальные апартаменты в Дубае №185458
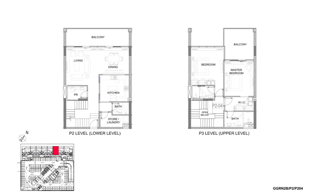
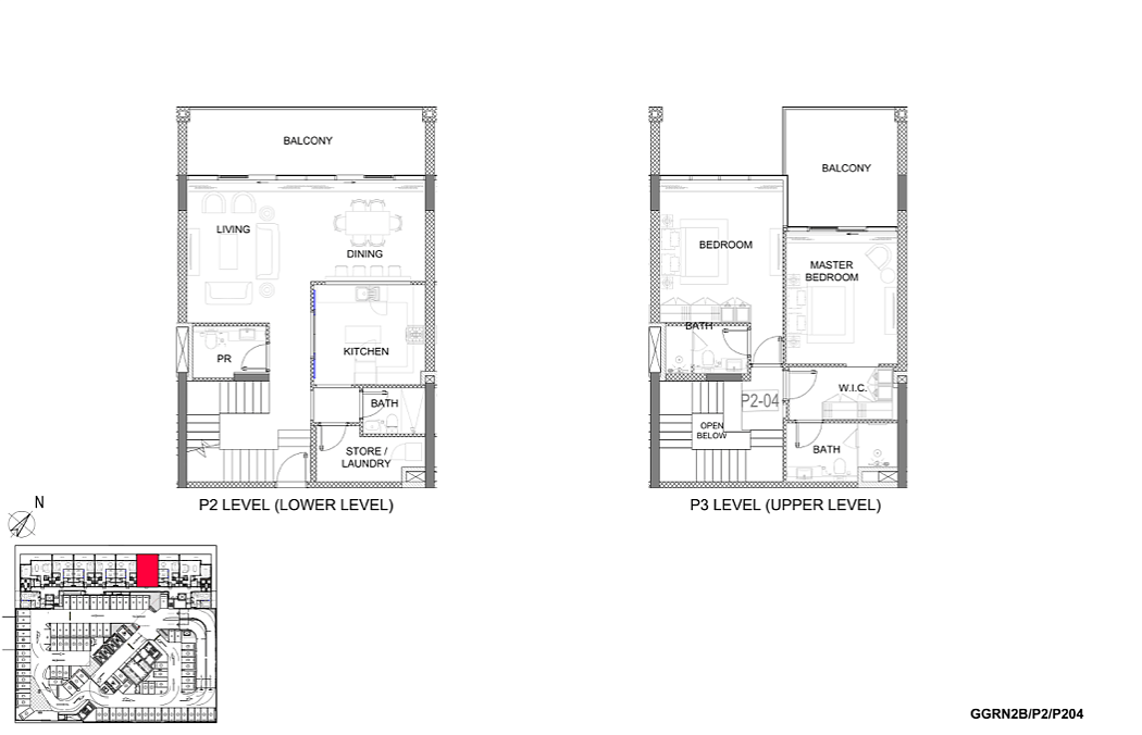
Продаются апартаменты в жилом комплексе премиального класса, состоящем из 3 высотных башен. Проект расположен в районе Damac Hills, в нескольких минутах ходьбы от профессионального поля для игры в гольф Trump International. Квартиры с полной отделкой. Стены, пол и потолки в нейтральных оттенках, чтобы будущие владельцы смогли дополнить жилые пространства на свой вкус. В кухнях установят стильную мебель, ванные комнаты оборудуют современной сантехникой. Планировки апартаментов включают просторные гостиные-столовые с выходом на балкон и уютные спальни со встроенными шкафами для одежды. Для каждой спальни предусматривается отдельная ванная комната. В апартаментах с 2 спальнями будет прачечная.
Среди главных плюсов нового проекта можно выделить: наличие элитных удобств, в числе пейзажные бассейны, хорошо оснащенные спортивные залы, открытые террасы с зонами для отдыха и загара, симулятор игры в гольф, кафе у бассейна и многое другое. Большая площадь, продуманные планировки и высококачественная внутренняя отделка квартир и таунхаусов, хорошее расположение в престижном комьюнити Damac Hills, где есть все необходимое для комфортного проживания: розничные магазины, кафе, торговый центр, школа, детский сад, гольф-клуб, парки, спортивные площадки и многое другое.
