Заявка на подбор

Новые 2-спальные апартаменты в Дубае №185463

185463
https://dom.com.cy/upload/iblock/daa/blshdz04hu9kdblg1gmfern03m8hq4me.jpeg
Дополнительно:
Закрытый комплекс
Новостройка
Детская площадка
Бассейн
Бытовая техника
Кондиционер
Сауна
Парковка
Тренажерный зал
Лифт
Джакузи
Квартиры в Эмиратах
Закрытые комплексы с бассейном, ОАЭ
Проекты и Застройщики ОАЭ
Высотки в Эмиратах
Описание:

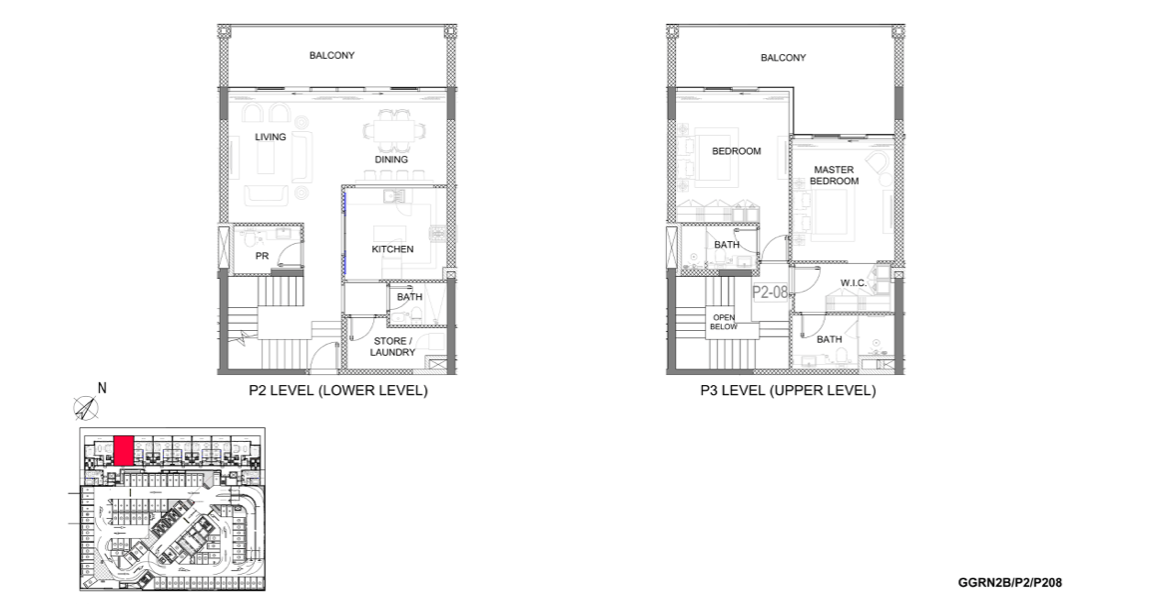
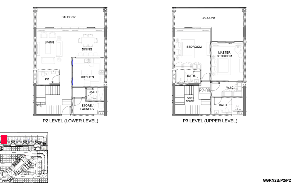
Продаются апартаменты в жилом комплексе премиального класса, состоящем из 3 высотных башен. Проект расположен в районе Damac Hills, в нескольких минутах ходьбы от профессионального поля для игры в гольф Trump International. Квартиры с полной отделкой. Стены, пол и потолки в нейтральных оттенках, чтобы будущие владельцы смогли дополнить жилые пространства на свой вкус. В кухнях установят стильную мебель, ванные комнаты оборудуют современной сантехникой. Планировки апартаментов включают просторные гостиные-столовые с выходом на балкон и уютные спальни со встроенными шкафами для одежды. Для каждой спальни предусматривается отдельная ванная комната. В апартаментах с 2 спальнями будет прачечная.

Среди главных плюсов нового проекта можно выделить: наличие элитных удобств, в числе пейзажные бассейны, хорошо оснащенные спортивные залы, открытые террасы с зонами для отдыха и загара, симулятор игры в гольф, кафе у бассейна и многое другое. Большая площадь, продуманные планировки и высококачественная внутренняя отделка квартир и таунхаусов, хорошее расположение в престижном комьюнити Damac Hills, где есть все необходимое для комфортного проживания: розничные магазины, кафе, торговый центр, школа, детский сад, гольф-клуб, парки, спортивные площадки и многое другое.

Читать далее
Объект
№185463
Тип:
Квартира / Апартаменты
Город:
Район:
Комплекс:
Застройщик:
Кол-во спален:
2
Ванных комнат:
2
Общая площадь:
2 фут2
Жилая площадь:
2 фут2
Год постройки:
03/2027
Расстояние до моря:
12000 фут
Класс энергоэффективности:
A
3 354 000 AED
1 677 000 AED/фут2
2026-06-08T01:20
185463
Записаться на просмотр
Поделиться:
Похожие предложения
1933 объекта Показать все
https://dom.com.cy/upload/resize_cache/iblock/a8d/1088_820_2/68atgxg8dpu3apg6f1x64xyz0i1bwl0n.jpeg
№ 206089
Площадь: 1442 фут2
Спален: 2
2 418 000 AED
1 677 AED/фут2
https://dom.com.cy/upload/resize_cache/iblock/90b/1088_820_2/gmasp1iv27b6b4zlzd4dusc1p68l45sk.jpeg
№ 206088
Площадь: 1442 фут2
Спален: 2
2 418 000 AED
1 677 AED/фут2
https://dom.com.cy/upload/resize_cache/iblock/d1d/1088_820_2/h8wfw06h7s53x7f84yx0jjhlod4yogng.jpeg
№ 206087
Площадь: 1443 фут2
Спален: 2
2 412 000 AED
1 672 AED/фут2
https://dom.com.cy/upload/resize_cache/iblock/d1d/1088_820_2/h8wfw06h7s53x7f84yx0jjhlod4yogng.jpeg
№ 206086
Площадь: 1442 фут2
Спален: 2
2 411 000 AED
1 672 AED/фут2
Ранее просмотренные объекты
5 объектов Показать все
https://dom.com.cy/upload/resize_cache/uf/8b2/1088_820_2/82p5mjdqame3k0rl2h362f2s0qdg9sm0.jpg
№ 112914
Площадь: 1914 фут2
Спален: 3
8 252 000 AED
4 311 AED/фут2
https://dom.com.cy/upload/uf/58f/jjlr93n94kior65mpkhlvghyq9v9c74i.jpg
№ 112905
Площадь: 1989 фут2
Спален: 3
7 897 000 AED
3 970 AED/фут2
https://dom.com.cy/upload/uf/fdc/rmdmxyfsxpuruveqf09cht1phh8q11fb.jpg
№ 112431
Площадь: 555 фут2
Спален: 1
803 000 AED
1 447 AED/фут2
https://dom.com.cy/upload/uf/24e/9ap4z2qff00wwggp6ujgxaupieep84dl.jpg
№ 112380
Площадь: 473 фут2
Спален: 1
664 000 AED
1 404 AED/фут2
Интересное