Новые 2-спальные апартаменты в Дубае №185902
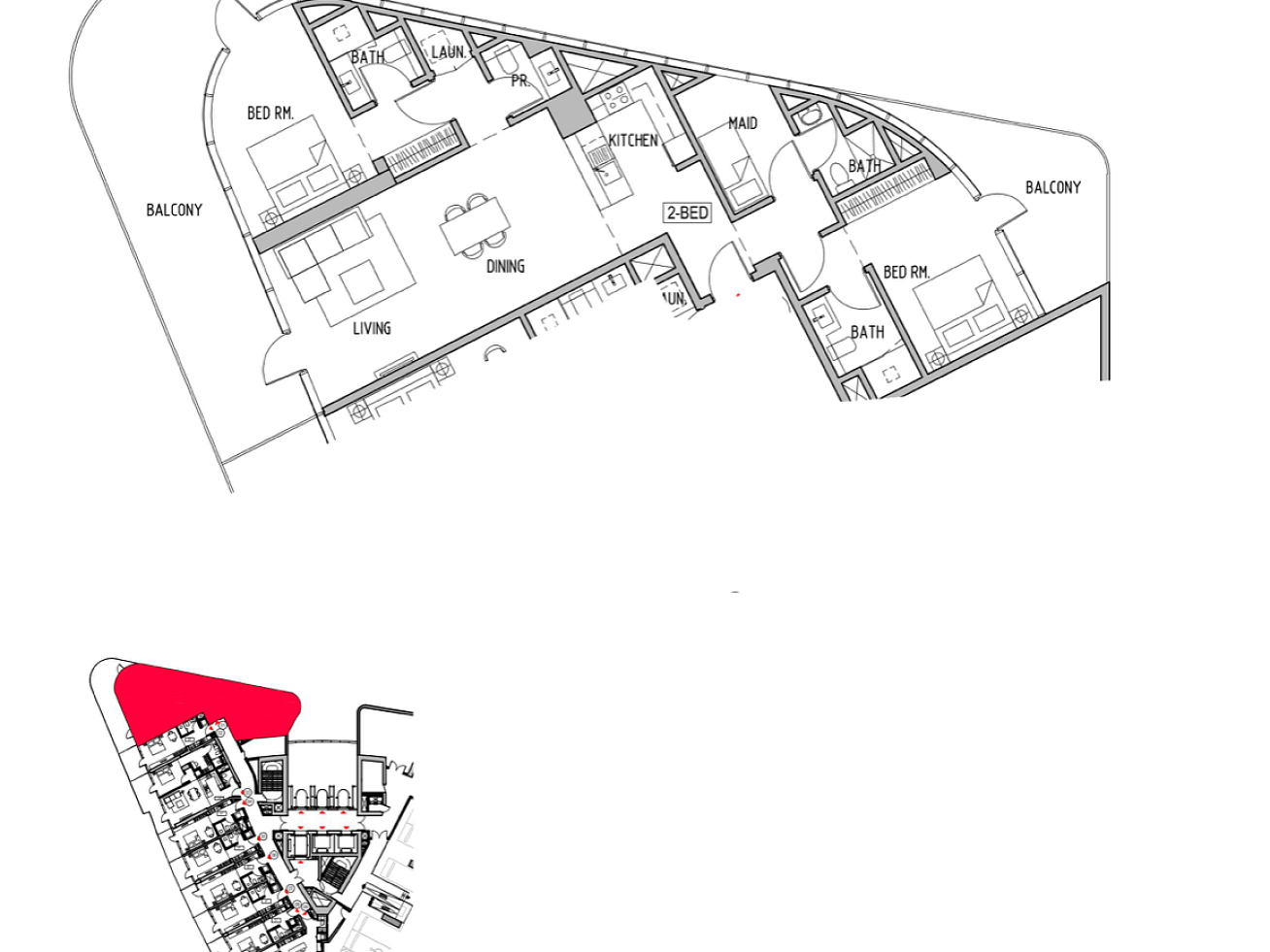
Продаются апартаменты в жилом комплексе премиум-класса, расположенном в престижном районе Business Bay. Элегантный комплекс, напоминающий голубую жемчужину, включает в себя 376 брендированных студий и апартаментов с 1–2 спальнями с просторными планировками и шикарными интерьерами. Каждая резиденция будет иметь собственный балкон, обеспечивающий жителям максимальный комфорт. Резидентам будут доступны эксклюзивные возможности для отдыха и поддержания здоровья благодаря следующим удобствам:зоны для йоги под куполами, подводный музей жемчуга, интерактивный фонтан с возможностью прохождения сквозь него, бассейн с волнами в форме ракушки с голубыми жемчужинами под водой, шары-зорбы, бассейн-инфинити с радужной плиткой на дне, скраб-бар, игровая арена со стеклянным фонтаном с пузырьками. Вы сможете наслаждаться потрясающим видом на Dubai Water Canal, не выходя из дома.
