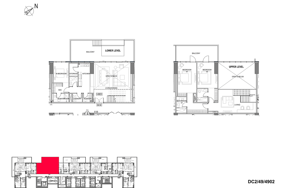
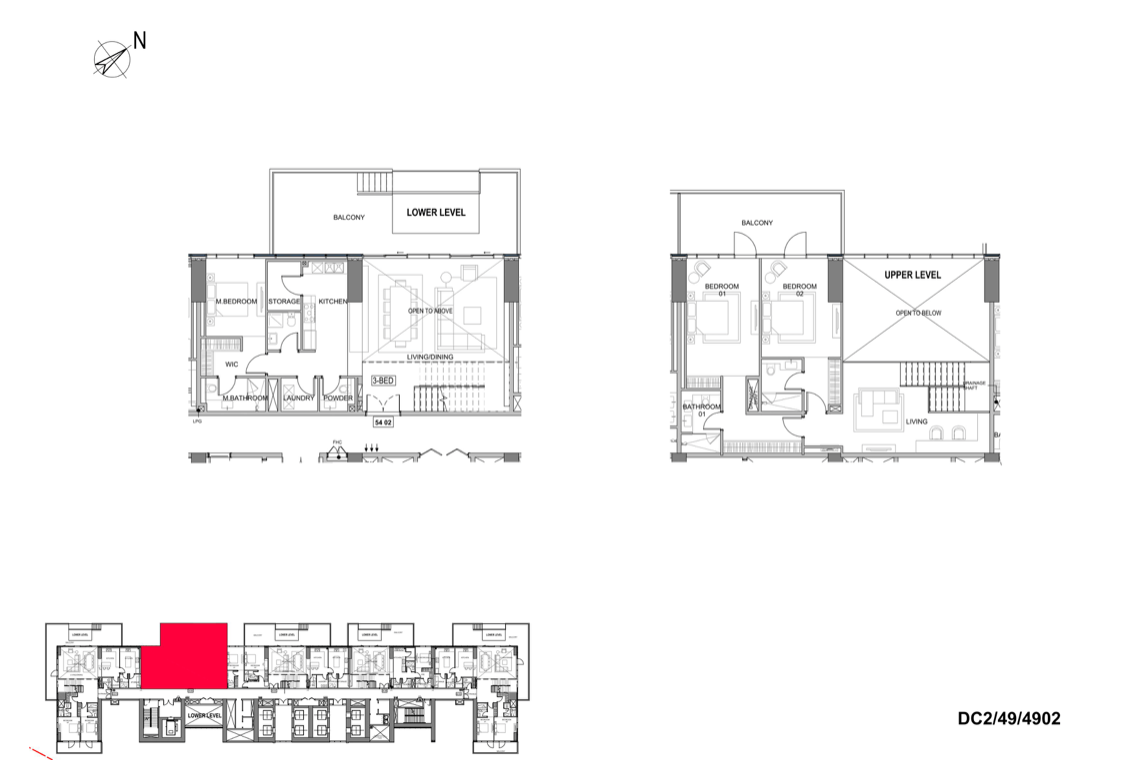
New 3-bedroom apartment in Dubai № 185108
3 bedroom apartment for sale in the heart of Dubai, in Al Wasl, near the famous Safa Park. The project is a masterpiece of modern architecture, with its design inspired by elegance, innovation and sustainable development. The sleek glass facade and modern lines create a striking visual impact, blending seamlessly into the Dubai skyline. Each residence is thoughtfully designed with extensive layouts, high ceilings, and floor-to-ceiling windows that create breathtaking views of the city and the Arabian Gulf. The spacious layouts feature high ceilings and floor-to-ceiling windows with stunning views. Each apartment has modern finishes and excellent materials reflecting the project's commitment to luxury. The kitchens are fully equipped, functional and elegant. Although the apartments are sold unfurnished, their thoughtful design provides residents with the opportunity to create their ideal living space.
