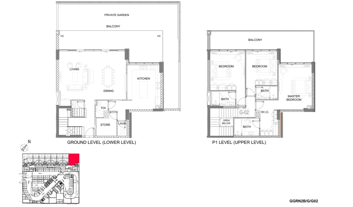
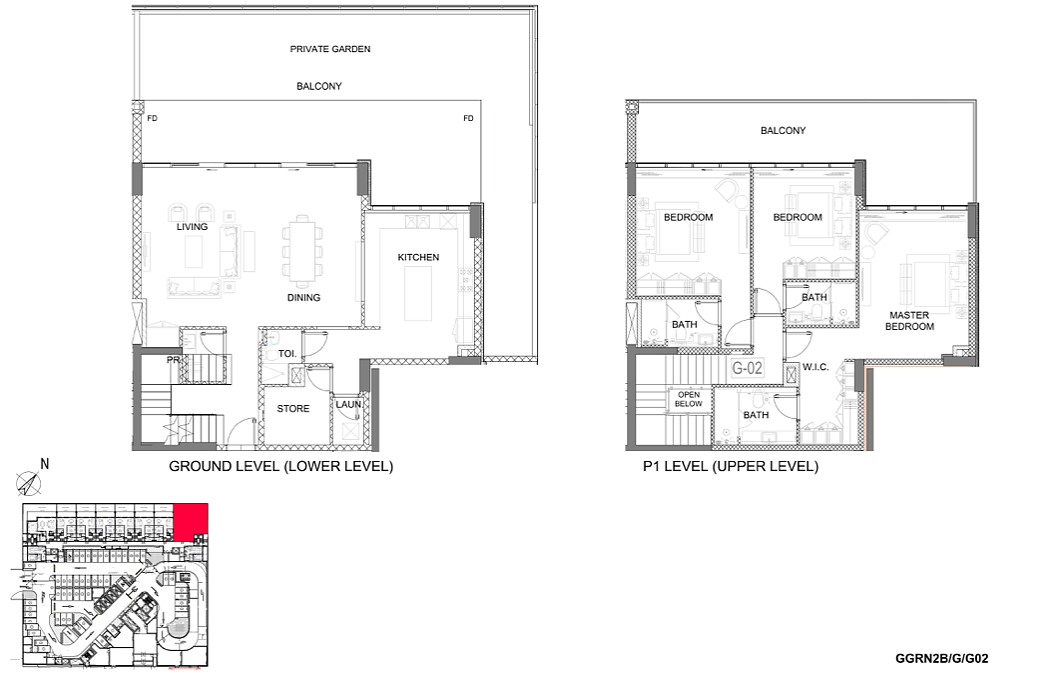
New 3-bedroom apartment in Dubai № 185498
Apartments for sale in a premium class residential complex consisting of 3 high-rise towers. The project is located in the Damac Hills area, within walking distance of the Trump International professional golf course. The apartments are fully finished. The walls, floors and ceilings are in neutral shades so that future owners can complement the living spaces to their liking. Stylish furniture will be installed in the kitchens, bathrooms will be equipped with modern plumbing. The apartment layouts include spacious living-dining rooms with access to a balcony and cozy bedrooms with fitted wardrobes. Each bedroom has a private bathroom. The 2-bedroom apartment will have a laundry room.
Among the main advantages of the new project are the availability of luxury amenities, including infinity pools, well-equipped gyms, outdoor terraces with relaxation and sunbathing areas, a golf simulator, a pool cafe and much more. Large area, thoughtful layouts and high-quality interior decoration of apartments and townhouses, good location in the prestigious Damac Hills community, where there is everything you need for a comfortable stay: retail stores, cafes, shopping center, school, kindergarten, golf club, parks, playgrounds and much more.
