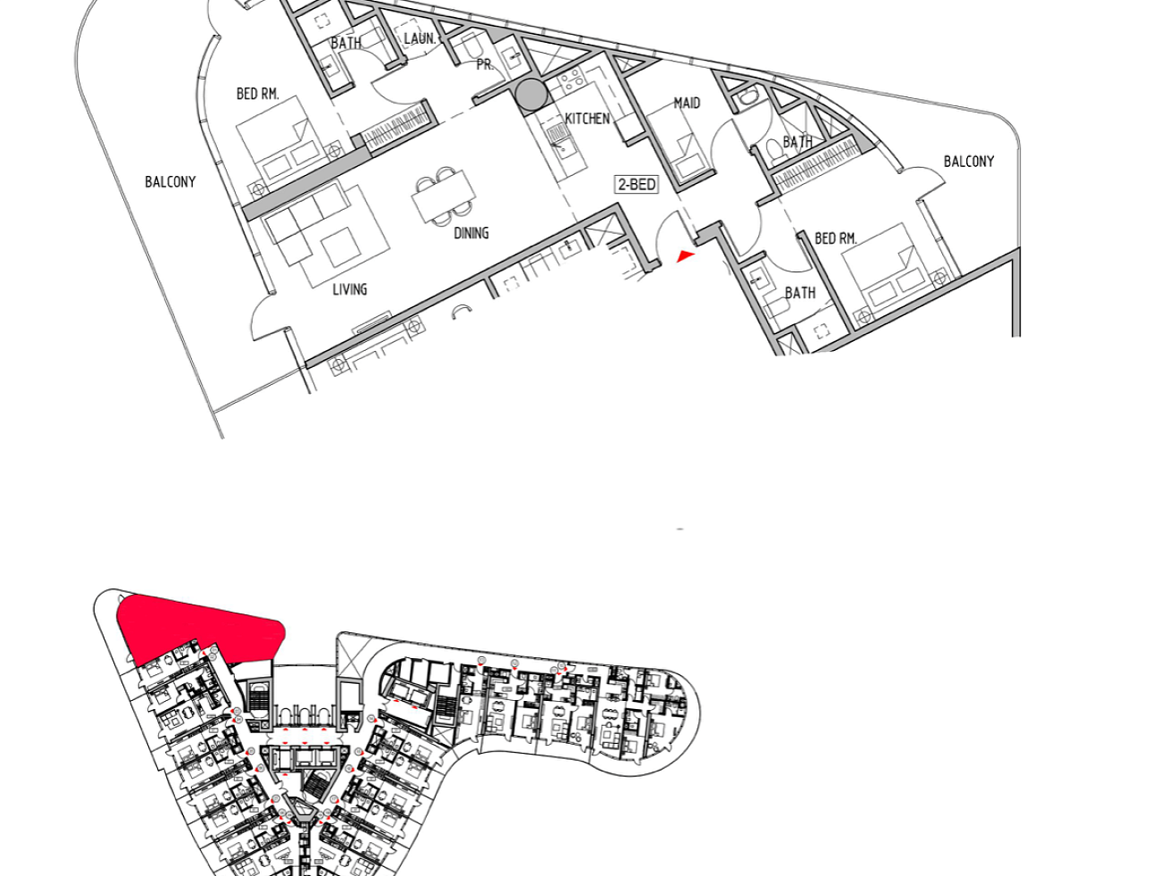
New 2-bedroom apartment in Dubai № 185909
Apartments for sale in a premium residential complex located in the prestigious Business Bay area. The elegant complex, reminiscent of a blue pearl, includes 376 branded studios and apartments with 1-2 bedrooms with spacious layouts and chic interiors. Each residence will have its own balcony, providing residents with maximum comfort. Residents will have access to exclusive opportunities for recreation and health maintenance thanks to the following facilities:yoga areas under domes, an underwater pearl museum, an interactive fountain with the possibility of passing through it, a pool with waves in the shape of a shell with blue pearls underwater, zorba balls, an infinity pool with rainbow tiles on the bottom, a scrub bar, a game arena with a glass fountain with bubbles. You can enjoy the stunning views of the Dubai Water Canal from the comfort of your home.
